Neubau von 1 MFH mit 8 Wohnungen und Tiefgarage – Waldkirch

Infos

Bauherr Stuckert Wohnbau AG
Standort Am Elzufer 25, 79183 Waldkirch
Planungsleistungen HOAI Phase 5 und Montagepläne
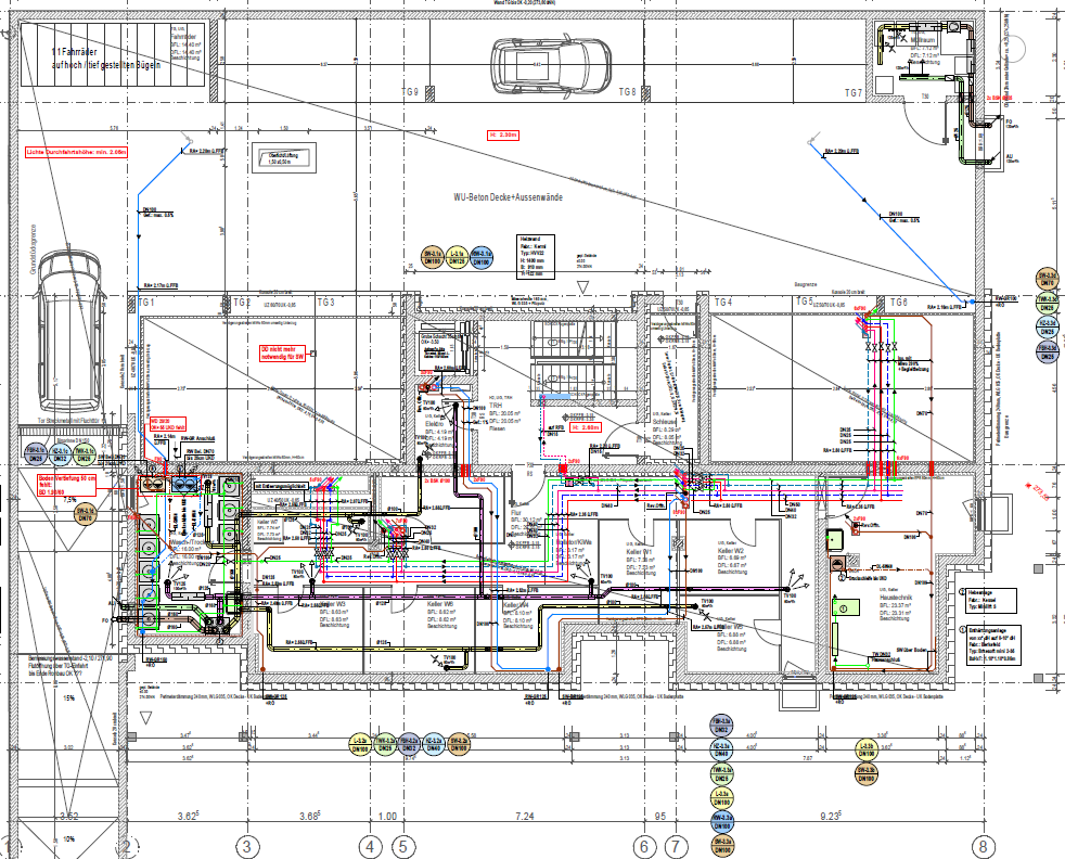
Gewerke Heizung, Lüftung und Sanitär
Planungszeitraum Mai 2025 bis September 2025
Kosten Haustechnik ca. 153.000 € netto
Nutzfläche Wohnungen 650 m²
Grundfläche Tiefgarage 350 m²

Beschreibung

Neubau von einem Mehrfamilienhaus mit insgesamt 8 Wohnungen und Tiefgarage in Waldkirch, Am Elzufer 25.
Installierte Heizleistung aus Contracting für 40 kW für die Fußbodenheizung und 215 kW für die Warmwasserbereitung
Installierte Heizung Verbraucher ca. 620 m² Fußbodenheizung über 8 Wohnungsstationen
Sanitär Einrichtungsgegenstände ca. 62 Objekte
Installierte Lüftungsgeräte
  • 1 Kompakt-Lüftungsgerät mit max 340 m³/h und WRG für die Kellerräume
  • 1 Abluft Ventilator für den Müllraum mit Außenluft Nachströmung
  • 13 Einzelablüfter mit max 100 m³/h für die Sanitärräume